PROCESS
SITE ASSESSMENT

PROGRAMMING

SCHEMATIC DESIGN

DESIGN DEVELOPMENT

CONSTRUCTION DOCUMENTS

ADDITIONAL SERVICES

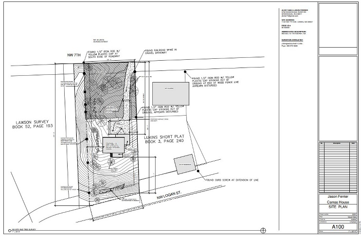
This part of the process involves visiting your prospective site to gather existing data.

A report and site plan will be provided documenting:

Property dimensions and configuration
Required building setbacks
Location and dimensions of existing structures and uses
Location / ID of access streets and private drives
Topography (as available in GIS)
Location / identification of adjacent trees
Location of known utilities, well houses, septic, drains, electrical
Location of environmental concerns (wetlands, riparian setbacks, flood plains)
Zoning uses and limitations
Required design ordinances (Gorge, HOA's, city design districts)
Overlay of existing surveys as available







Site Assessment / As-builts

Home
About
Services
Contact
Portfolio
Process
F3D HOME DESIGN
CUSTOM HOME AND GARDEN DESIGN
NEXT>